Wow, ty for the generous zap!
Love the indoor tree here. What is that - a money tree? The cutout shelves near the staircase are also great!
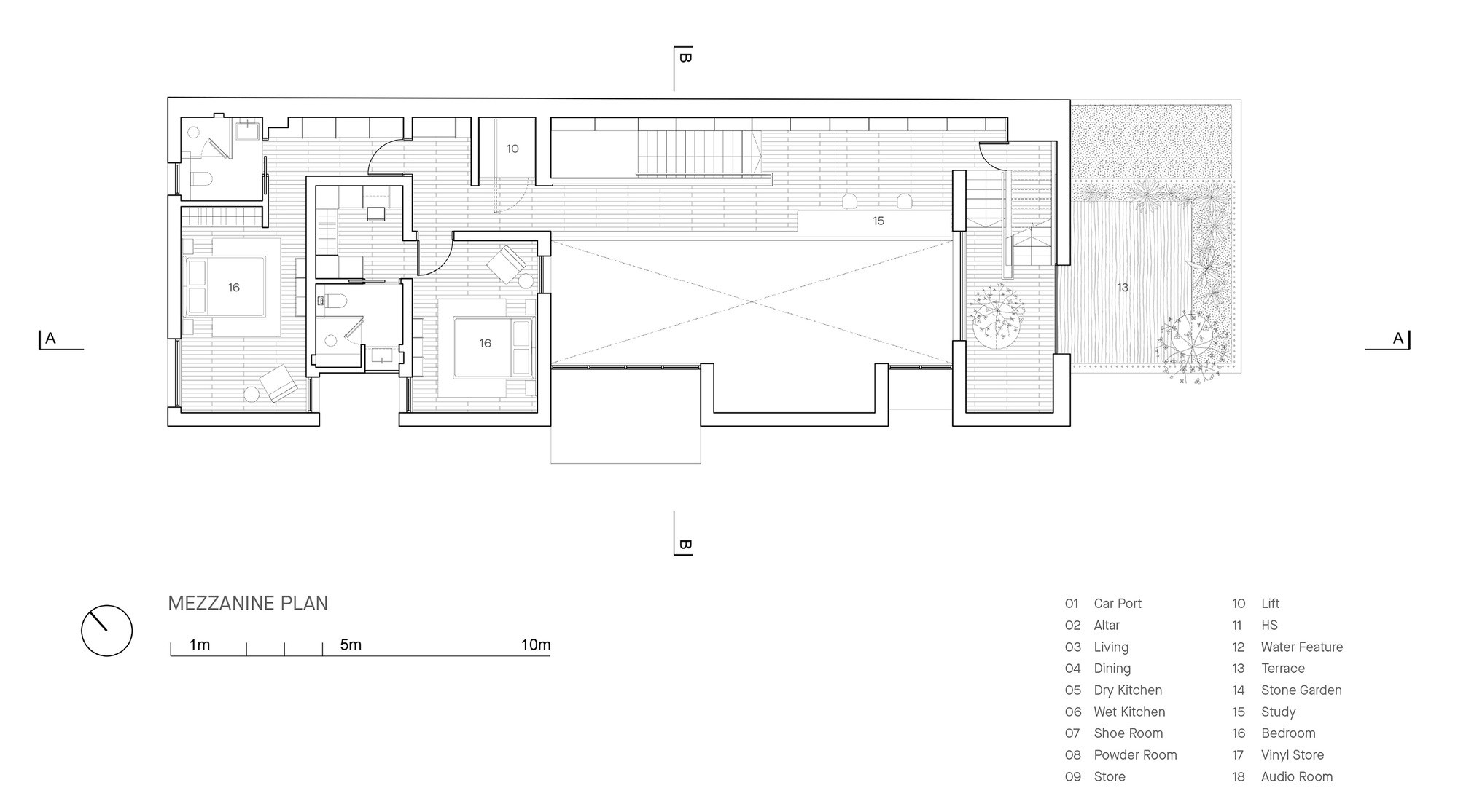
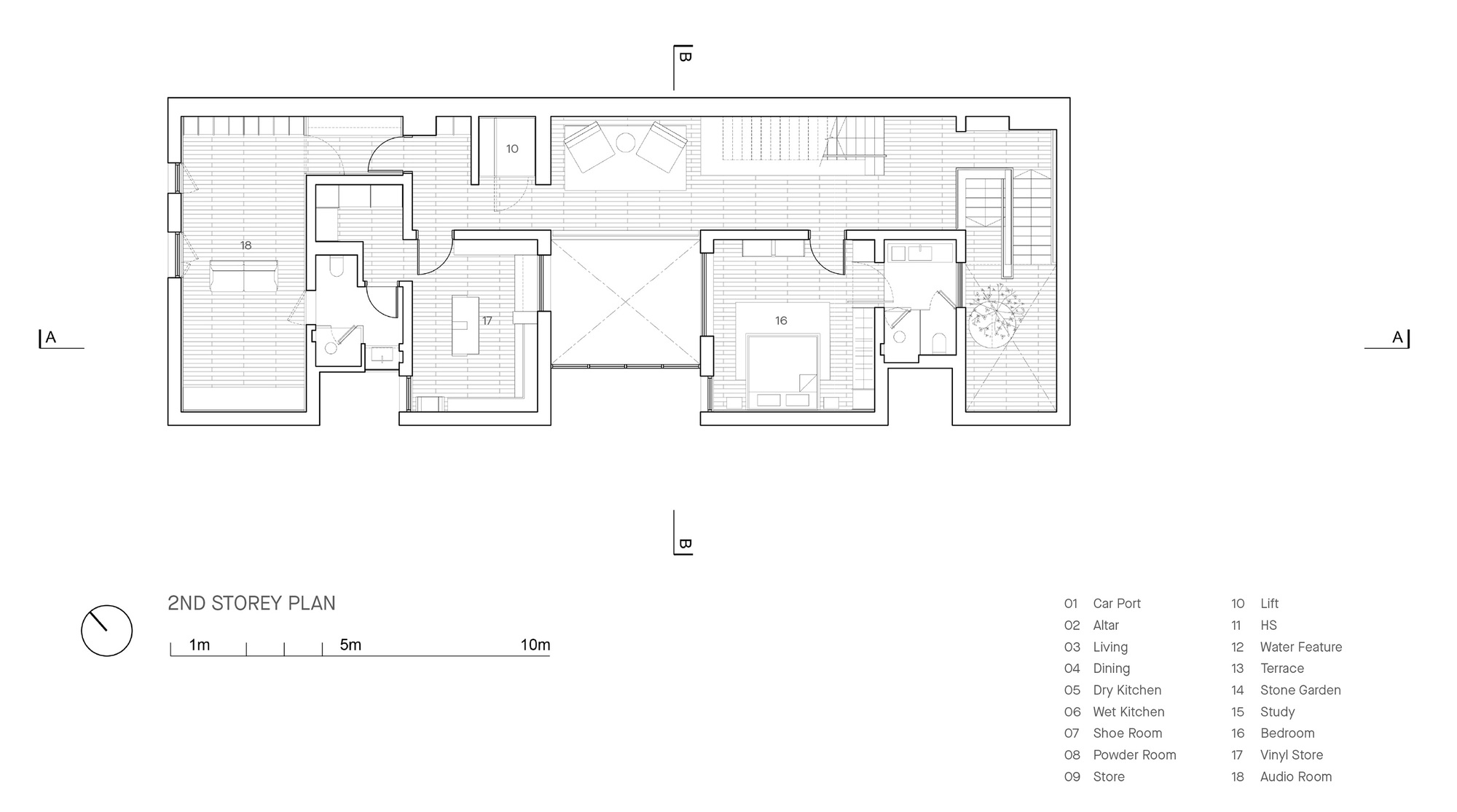
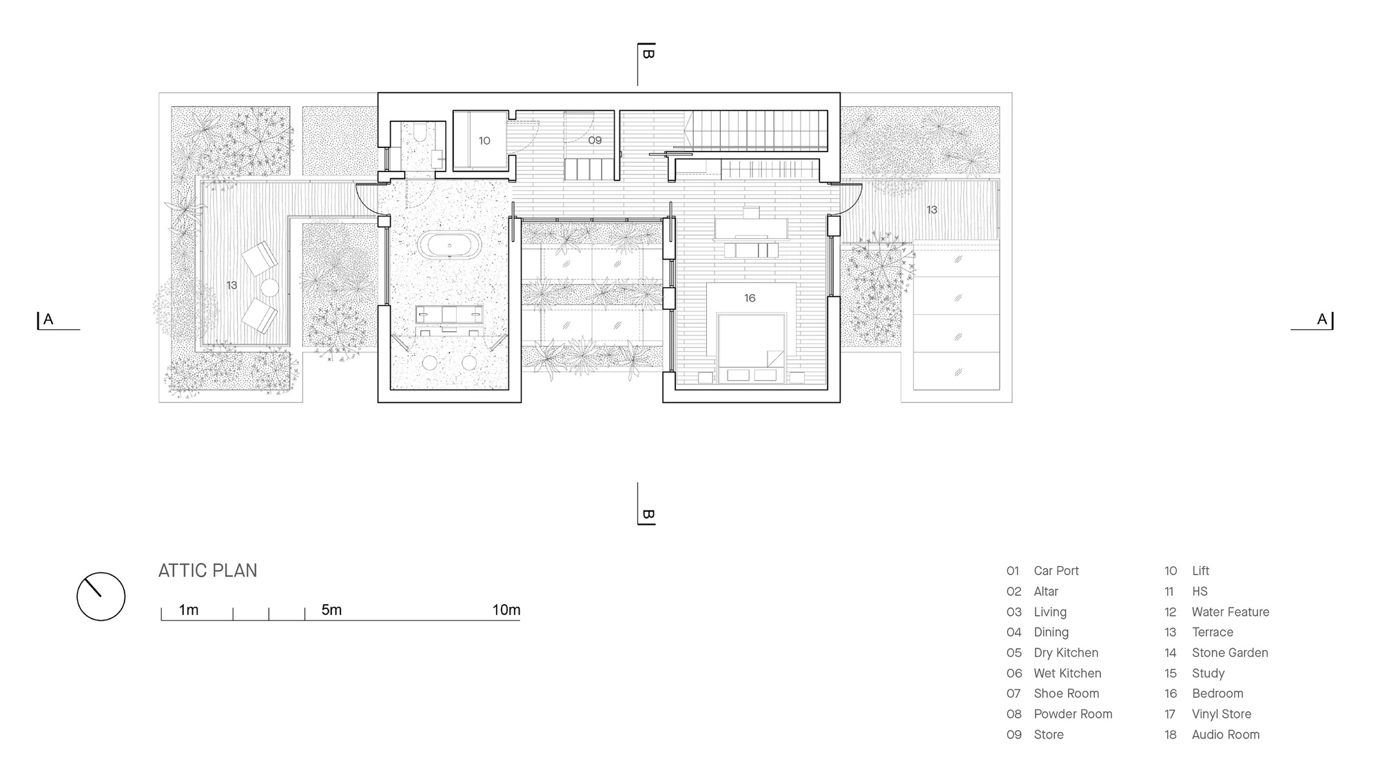
In-Between House
#architecture
Architects: Super Assembly
Area: 600 m²
Year: 2025
Photographs: Finbarr Fallon
General Constructing: Spring View
Country: Singapore




























There are a handful here: https://archnostr.vercel.app/
Sadly, I cannot link to them directly as they load in one gallery basically.
These photos are normally taken immediately after construction / remodeling. The company that does the work will stage the house - sometimes bringing their own furniture (which is likely what you are seeing here). The owner has not moved in yet and that is why they look so empty. This is not always the case though - sometimes a magazine or something will arrange a visit to a home they heard about and really like, and will arrange for it to be photographed - at which point the resident(s) might clean it up, but the place will actually look like someone lives there.
I agree. I don't see the appeal. Perhaps when the house is not staged it might look a bit livelier?
I don't believe there are only 3 people or even that "bitcoin price" is such a common topic as you say
just in a 1min look I've found a bunch of npubs who never talk about that
nostr:npub1dtf79g6grzc48jqlfrzc7389rx08kn7gm03hsy9qqrww8jgtwaqq64hgu0 nostr:npub1m4ny6hjqzepn4rxknuq94c2gpqzr29ufkkw7ttcxyak7v43n6vvsajc2jl nostr:npub1cgcwm56v5hyrrzl5ty4vq4kdud63n5u4czgycdl2r3jshzk55ufqe52ndy nostr:npub17huchf2qgk304r0j497rtlps9xdeur235uqhjhqypj5qemd08x6q093xmv nostr:npub1r0d8u8mnj6769500nypnm28a9hpk9qg8jr0ehe30tygr3wuhcnvs4rfsft nostr:npub1suftx60fq63eyhmqqqxq48qjmefuy20kkc8wdp5j6jmnssrzttusc4lmh2 nostr:npub1wmr34t36fy03m8hvgl96zl3znndyzyaqhwmwdtshwmtkg03fetaqhjg240 nostr:npub1q5jxvccuds9wmpqhr7p770y4ewqcfr2dehqarm5alhm4hpgvrj6qtm2qhm nostr:npub1l8tlpvn3kka3nm2qpk96amsuy2kr5kl9eusd54fpn3yjnefrnpaq2j5t9v nostr:npub1m64hnkh6rs47fd9x6wk2zdtmdj4qkazt734d22d94ery9zzhne5qw9uaks nostr:npub1pmwz736ys3mfhjdld4r36xqwfc5qkz7dwxdkmfu3qqd7kucvludsrm4nu6 nostr:npub1pmwz736ys3mfhjdld4r36xqwfc5qkz7dwxdkmfu3qqd7kucvludsrm4nu6 nostr:npub1qr68ra339njq3alt2evj52mvdd04ftpfvlrh7nq5nzgrkkvwrvtqf3cwgw nostr:npub1njst6azswskk5gp3ns8r6nr8nj0qg65acu8gaa2u9yz7yszjxs9s6k7fqx nostr:npub15qd4hgnyyym5y5zy9cxj87twdf9uus57q96u6pmf4kx9shw44zfqgngj2x nostr:npub1f4uyypghstsd8l4sxng4ptwzk6awfm3mf9ux0yallfrgkm6mj6es50r407 nostr:npub1e49nhp86q24g66jp9wahzmerv79dum8y4dpv4dt0snvjwlkynf4qnzsm0m
it's hard to do that on a phone but from these leads you can find at least 100 others
👋 only architecture here!
El Recer House
#architecture
Architects: Viraje arquitectura
Area: 411 m²
Year: 2024
Lead Architects: Jesús Damián Herranz Busquiel
Proyectista : Proyectista
Architect Project Management: Alba Pérez
Project Manager: Dusami
Construction Management: Carmelo Calvillo
City: Alfinach, Valencia
Country: Spain






























Jump off the end and dive right in!
Cloud House
#architecture
Architects: ROOM+ Design & Build
Area: 360 m²
Year: 2025
Photographs: Sonmeo Nguyen Art Studio
Country: Vietnam

























Panorama House
#architecture
Architects: Studio B Architecture + Interiors
Area: 7840 ft²
Year: 2023
Photographs: James Florio
Lead Architects: Studio B Architecture + Interiors
Interior Designers: Leap Interiors
General Contractors: Hansen Construction
City: Boulder
Country: United States


























Residense in Vilnius
#architecture
Architects: Architectural Bureau G.Natkevicius & Partners
Area: 214 m²
Year: 2024
Photographs: Lukas Mykolaitis
City: Vilnius
Country: Lithuania



























Set Houses with One Pillar
#architecture
Architects: Buero Wagner
Area: 660 m²
Year: 2025
Photographs: Kim Fohmann
City: Berg
Country: Germany
































I personally really like slick minimalist builds haha, but yeah, this home has nice earthy textures that work. People generally want neutral tones for a relaxing atmosphere to unwind at the end of the day - not many people associate that with vibrant, in your face colors 🤭
Casa Calma
#architecture
Architects: Ravel Architecture
Area: 4750 ft²
Year: 2025
Photographs: Chase Daniel
City: Austin
Country: United States




















Cooroy House
#architecture
Architects: Dan Wilson, Henry Bennett
Area: 155 m²
Year: 2023
Photographs: Yaseera Moosa
City: Cooroy
Country: Australia






































House Pedra
#architecture
Architects: Marcos Bertoldi Arquitetos
Area: 887 m²
Year: 2024
Photographs: João Vitor Sarturi
Lead Architects: Marcos Bertoldi, Felipe Chimanski
City: Curitiba
Country: Brazil


































Villa Air
#architecture
Architects: ARK-architecture
Area: 1500 m²
Year: 2024
Photographs: Bilel Khemakhem
City: Tunis
Country: Tunisia



































Hata Dome
#architecture
Architects: Anastasiya Dudik
Area: 1707 ft²
Year: 2025
Photographs: Natasha Lee, Shannon Moss, Brandon Stanley
Lead Architects: Anastasiya Dudik
City: Pioneertown
Country: United States























Sonoma Ridge House
#architecture
Architects: Holder Parlette
Area: 5000 ft²
Year: 2023
Photographs: Adam Potts Photography
City: Sonoma
Country: United States





















































Merricks Farmhouse
#architecture
Architects: Michael Lumby Architecture, Nielsen Jenkins
Area: 640 m²
Year: 2021
Photographs: Tom Ross
Builders: Atma Builders
Landscape Design: Franchesca Watson Garden Designer, Robyn Barlow
Landscape: Julian McCarthy Landscapes
Architect: Michael Lumby with Nielsen Jenkins
Country: Australia
This house is located on a spectacular 50-acre property with views over vineyards towards Philip Island and Western Port Bay and is conceived of as an abstraction of a typical Australian Farmhouse. While sitting on a prominent hilltop affords it the best views, it also means that the house is somewhat exposed to the coastal climate of the region.
Spread out over a single level, the program of the house is arranged to counter this, creating a large and sheltered courtyard garden in its center. This courtyard becomes the most important room in the house, acting as a reference and refuge from the expansive nature of the outlook, as well as an introspective focal point for the house once night falls. The heft of the walls, deep eave overhangs, and dark ceiling finishes further enhance this experience of refuge within the broader context.
Although it is a large house with only 2 permanent residents, the project needs to expand and contract as 4 children with their respective families visit for holidays. 3/4s of the house can be shut down, allowing all the house's ancillary functions to be experienced simply as a courtyard wall. The front wing then, with all the main living spaces, functions as a simple one-bedroom pavilion, affording the house a spatial intimacy that belies its size.
While the roof is conceived of as a singular and sleek element, visible in the landscape, the walls it is placed on are seen as more elemental in nature. 1m thick and planted, these walls project out into the landscape, editing and choreographing views and circulation. While most of these projecting walls frame views outward, when adjacent to more private spaces, they wrap back around to capture private courtyards, giving even intimate spaces a floor-to-ceiling outlook over greenery.
This is a constant theme: The architecture recedes and the building acts simply as a lens from which to experience the landscape. Every room looks out onto a garden. Wherever possible, the design and siting was informed by the existing trees. The old driveway entry avenue of Elms was retained and repurposed as the main pedestrian entry sequence. The old windbreak of lilly-pillies to the north of the pool was retained to create a ‘full stop’ to the house, a second, softer courtyard with a wall of trees as an edge.
As the site has no council mains, all of the site’s domestic water is captured by the large, singular roof and stored in circular concrete water tanks. This ubiquitous item of farming infrastructure is taken through the project as a motif, and used throughout the garden spaces as birdbaths, a firepit, and a series of ponds, each becoming points of reference within the landscape.
Happy New Year architecture admirers! Just a quick question:
In 2026, would you like to see more or less of certain content?
For example, more industrial architecture, or perhaps interior design products?
Feedback super appreciated! 🙇♂
Di Frenna Architects Atelier
#architecture
Architects: Di Frenna Arquitectos
Area: 294 m²
Year: 2025
Photographs: Onnis Luque
City: Colima
Country: Mexico



































Any architects on nostr? #asknostr
Dirnbergergut Building Ensemble
#architecture
Architects: Moser und Hager Architekten
Area: 522 m²
Year: 2024
Photographs: Gregor Graf
Lead Architects: Michael Hager, Anna Moser
Country: Austria



























Ninefold Roof
#architecture
Architects: T2P Architects Office
Area: 159 m²
Year: 2024
Photographs: Vincent Hecht
City: Karuizawa, Nagano
Country: Japan
On a site sloping down to a valley on Mt. Happu in Karuizawa, we planned a villa for four families, aiming to create a place where they can enjoy the rich nature surrounded by a forest with a view of a stream. The architecture was designed to float lightly above the ground on an independent foundation to correspond to the terrain, and to be a group of small volumes with a roof that slopes down to create a quiet appearance with minimal impact on the site.
The plan is a square divided into nine sections, with common areas on the first floor and private rooms on the second floor. The first floor, enclosed by glass, is an open space with a panoramic view, and the four private rooms on the second floor, which require privacy, are laid out in a crisscross pattern, with high ceilings at the four corners of the crisscross space, creating a sense of unity on the first floor.
Corresponding to the nine sections of the plan, nine small roofs with different slopes and orientations overlap each other so that they become higher toward the center. The roofs at each of the four corners protrude from the exterior wall in the shape of swastika, covering the four terraces that are connected to the entrance, kitchen, living room, and master bedroom on the first floor, extending the living space to the exterior. The living space extends to the outside.
Despite its simple spatial composition, a three-dimensional and deep space is built under the nine-layered roof, creating an inclusive place where people can enjoy a variety of distances from nature. As a base for families of different generations to gather, we hope that a variety of activities in harmony with nature will develop.

































There'e no easy way currently to ensure your content is served within a feed. Hashtags are abused constantly.
You have to understand that Bitcoin is a small space and everyone knows everyone, devs work across companies so it becomes harder to offend anyone by having your own strong opinion.
Whether we like it or not, bitcoin development is funded by funds and companies who are involved in this jpeg shitcoinery and those are driven largely by VC investments. Look at the VC list of any company and you'll see that they all invest in each other's companies. Literally. Everyone is somehow related to one company or another, either through partnerships, cross-employee functions or via related VC investors. When this becomes the situation, it's hard to speak out. No one of relevance will say the words I just uttered because their own financial future is implicated.
Cut and Morph House
#architecture
Architects: Ahron Best Architects
Area: 190 m²
Year: 2021
City: Croydon
Country: Australia
The client, a young couple, purchased the dilapidated property with the intention of restoring the existing building and converting it into a modern living sanctuary.
The site consisted of an existing brick workers' cottage that had undergone several distasteful alterations over its life. One of which consisted of an addition that had been tacked onto the side of the original building, resulting in a bulky and un-proportional street-facing elevation. This formed the premise of the brief, which was initially; to restore the original brick building to its original proportion as viewed from the street, re-configure the layout of the existing building to suit a young modern family, and create a rear addition to accommodate a large new living, dining and kitchen space suitable for entertaining.
Our intention was to activate the entire site by creating a series of connected spaces inside and outside of the building that respond to the physical conditions of the site and program. We wanted to resist the urge to open the living area to the rear yard when there were viable opportunities for north-facing living and entertaining spaces along the side boundary. Through material treatment and window placement, the threshold is exaggerated, and a stark contrast between the new and old is formed.
In plan negative and positive space is used as a tool to creates a series of courtyards or usable spaces around the perimeter of the living addition and inside/outside spaces within the living. While the living/kitchen and dining area would generally be considered open plan, we wanted to subtly define these spaces, giving each space its own spatial characteristic or purpose while maintaining the overall connection. The rotating of the living/lounge area slightly away from the other spaces resulted in a slightly more discreet space for sitting and relaxing and entry into the yard.
Dealing visually with the junction between the new and old is always a challenge in contemporary alts and adds. In this case instead of playing down this interaction we envisaged a more sculptural solution. The existing building is cut physically at a suitable line then reconstructed using recycled bricks from the site to form a large sculptural wall that exaggerates a contemporary vernacular form. This form sets the line of a new roof that creates large voids with celestial windows over the hall and bathroom.
From the living and entertaining areas, the wall acts as a dramatic backdrop that is somewhat symbolic of its urban context and demolished remnants of the site. A large skylight has been located at this junction and carefully detailed so its glass appears to be floating into the brick wall; this breaks down the threshold between the old and the new and sets up views of the walls from the internal spaces. When you open the windows at the top of the hallway void you immediately feel the air brush past you as it is sucked up through the void.




















Private lodging in Minato-ku
#architecture
Architects: FujiwaraMuro Architects
Area: 65 m²
Year: 2025
Photographs: Katsuya Taira(studioREM)
City: Osaka
Country: Japan




































Casa Figueira
#architecture
Architects: buck&simple
Area: 680 m²
Year: 2020
Photographs: Prue Ruscoe
Country: Australia
Named after and centred around the century-old heritage-protected fig tree, Casa Figueira is a home nestled into its surroundings. Quietly secluded at the end of a cul-de-sac in the Sydney harbourside suburb of Rose Bay, the topography of the site eventuates to gun barrel views of the harbour and city beyond.
A highly complex design resolution and approvals process relied on a collaborative approach to bring the project to fruition. Working from the base of a planar curved form designed by Luigi Roselli Architects, we focussed on tangibility, material, and detail. As lead Architect, buckandsimple in company with Interior design team Atelier Alwill and landscape architects Dangar Barin Smith worked to hone the design and build processes. Integral to this unique build was a design-focussed client who placed trust in their team to fulfil their brief and deliver a truly bespoke family home balancing poise and resilience.
We built from early brief concepts of a mid-century Brazilian aesthetic, seeking to define an open-air living space framed by robust materials. From above, off-form board marked concrete ceilings offset a perpendicular mass of American Walnut joinery, framing and drawing the experience to the outside and surrounding cultivated landscape. Generous open-plan living spaces are separated into functional nodes, folding around a central courtyard. The main pavilion is dominated by a solid one-piece stainless steel kitchen work surface and monolithic timber block, a physical and cultural nexus. The opposing side ends in a focal sunken lounge, consolidating a place to sit, relax, and share.
Restrained lines of joinery belie the complex program hidden beyond. Service areas, equipment, guest quarters, and the powder room all quietly sit concealed, allowing the main program to be read uninterrupted. Puncturing the formal program and the minimal, restrained approach, we sought to introduce detail and repetition of material touchpoints. The Bronze, etched entrance door, the curved skeletal foyer stair, steel ribbed open fireplace; hand sewn sunken lounge; custom lighting fixtures and floating joinery in front of slimline glazing. Each encapsulates the function of a space: welcome, retreat, gather, converse, eat, and work.
From the outset, it was important for our clients that this home withstood the test of time and weathered gracefully. Balancing aesthetics and performance, we gave careful consideration to material selection and material-specific detailing. We researched and worked closely with suppliers, focussing on the finishing of timberwork and resilient protective coatings and favouring the use of non-ferrous metals externally. The result was a continuous thread throughout the home. Intricate touchpoints of aged brass bring highlight, offset against planar raw concrete, mass rammed earth, and crisp white rendered bands that intersect and are balanced by the soft warmth of timber. Set to patina gently against its namesake backdrop,p the home exudes an estate feel, relaxed in its role as a family home and place of respite from the bustling city beyond.








































Yeah it kind of does...
Night Sky House
#architecture
Architects: Peter Stutchbury Architecture
Area: 158 m²
Year: 2020
City: Blackheath
Country: Australia
The most recent recipient of the highest residential award for architecture in Australia - The Robin Boyd Award 2021. (the Australian Institute of Architects did not award the Robin Boyd Award in 2022).
To try to summarise this house is virtually impossible. Walking into the space for the first time is difficult to describe. It feels ancient and modern at the same time. The references are so varied, "it feels like a church, a castle, a railway arch, a middle eastern grain store". The commissioning client was inspired by a 19th-century ammunition bunker he once saw in Romania built of raw brick with arches. The architect references work by Le Corbusier in India. However, it is distinctly a singular design. The key architectural feature is the parabolic vaulted ceiling, a self-supporting structure made of recycled bricks having a 3.5m long by 2.5m wide elliptical retractable skylight that is unglazed and tilted 20 degrees to the south to gaze at the stars.
The commissioning client, astronomer, and engineer, Basil Borun asked award-winning architect Peter Stutchbury to take him to the stars without leaving his living room.
Finding the location of the skylight in an unusual soaring roof, 7.5m at its apex. It is a parabolic vault, a self-supporting structure made of recycled bricks, many of which were picked by Mr. Borun. Diagnosed with Type 2 diabetes, Basil was wheelchair bound and therefore the design has to be truly accessible.
designer Fernanda Cabral and builder Mark Tan held cut-outs of prototypes of the skylight up against the sky until Mr. Borun was satisfied. The wheelchair had a tolerance of 10mm, therefore no step could be larger than 10mm. The house was designed so Mr. Borun could go from his car to anywhere in his house with a single turn of the wheelchair. The rooms were designed off a long, wide hallway with sliding doors.
Built of bricks, recycled when an apartment building in western Sydney was demolished. The vaulted room is reminiscent of a cathedral yet feels embracing and welcoming rather than imposing. And of a domestic scale, albeit an extraordinarily voluminous one.
Mr. Stutchbury said rarely was a project more considerate of the night than day. “We have put skylights in a building but not in such a prophetic and highly considered way.”
The Sustainability features include:
* Designed to last beyond 120 years.
* 48 photovoltaic panels.
* 15.5 kW of power gen, 34 kW of storage.
* Electric vehicle charging x2.
* 60,000 liters filtered rainwater tank.
* Evacuated tubes for solar hot water.
* Hydronic in-floor heating.
* Low-toxic finishes and fittings.
* Low-energy lighting.
* Low-water gardens.
* Recycled double-brick and insulated walls provide thermal mass to absorb and release heat.
* The oculus is central to the dwelling’s passive heating and cooling system, enabling two-way ventilation.






























